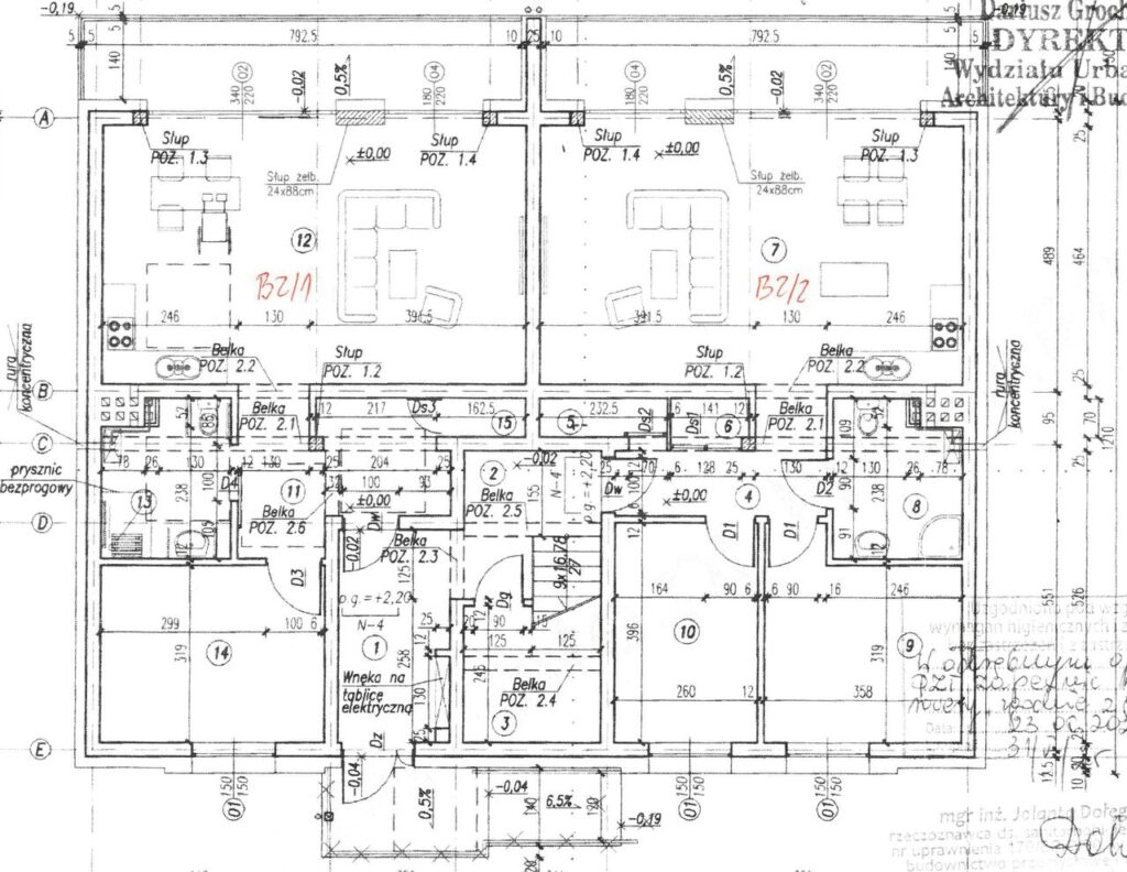
Budynek B2 – parter
Dwa funkcjonalne mieszkania na parterze – 2- i 3-pokojowe, stworzone z myślą o komforcie codziennego życia.
Sprawdź, które z nich będzie idealne dla Ciebie!

PARTER
64,24 m2
ZESTAWIENIE POMIESZCZEŃ
| komunikacja | 9,12m2 |
| pokój dzienny z aneksem kuchennym | 35,24m2 |
| łazienka | 6,09m2 |
| pokój | 12,70m2 |
| pomieszczenie gospodarcze | 1,09m2 |
PODSUMOWANIE
| Mieszkanie | 552 464 zł brutto |
| Miejsce postojowe | 14 000 zł brutto |
| Ogródek 134,0m2 | 20 100 zł brutto |
| Najniższa cena z ostatnich 30 dni CENA CAŁKOWITA | 586 564 zł brutto 586 564 zł brutto |
PARTER
72,44 m2
ZESTAWIENIE POMIESZCZEŃ
| komunikacja | 5,94m2 |
| pomieszczenie gospodarcze | 1,73m2 |
| gardedroba | 1,28m2 |
| pokój dzienny z aneksem kuchennym | 35,24m2 |
| łazienka | 6,09m2 |
| pokój | 12,06m2 |
| pokój | 10,10m2 |
PODSUMOWANIE
| Mieszkanie | 622 984 zł brutto |
| Miejsce postojowe | 14 000 zł brutto |
| Ogródek 149,5m2 | 22 425 zł brutto |
| Najniższa cena z ostatnich 30 dni CENA CAŁKOWITA | 659 409 zł brutto 659 409 zł brutto |
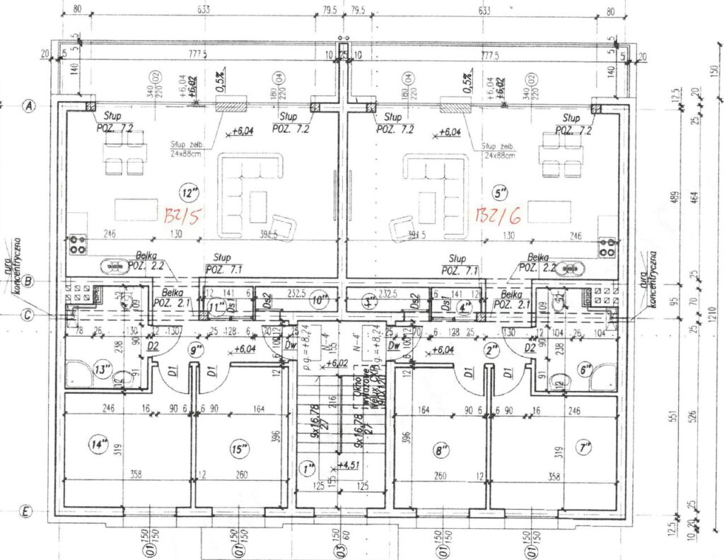
Budynek B2 – I piętro
I piętro budynku mieści dwa nowoczesne mieszkania trzypokojowe –
idealne rozwiązanie dla tych, którzy cenią przestrzeń i wygodę.

I PIĘTRO
72,44 m2
ZESTAWIENIE POMIESZCZEŃ
| komunikacja | 5,94m2 |
| pomieszczenie gospodarcze | 1,73m2 |
| gardedroba | 1,28m2 |
| pokój dzienny z aneksem kuchennym | 35,24m2 |
| łazienka | 6,09m2 |
| pokój | 12,06m2 |
| pokój | 10,10m2 |
PODSUMOWANIE
| Mieszkanie | 622 984 zł brutto |
| Miejsce postojowe | 14 000 zł brutto |
| Najniższa cena z ostatnich 30 dni CENA CAŁKOWITA | 636 984 zł brutto 636 984 zł brutto |
I PIĘTRO
72,44 m2
ZESTAWIENIE POMIESZCZEŃ
| komunikacja | 5,94m2 |
| pomieszczenie gospodarcze | 1,73m2 |
| gardedroba | 1,28m2 |
| pokój dzienny z aneksem kuchennym | 35,24m2 |
| łazienka | 6,09m2 |
| pokój | 12,06m2 |
| pokój | 10,10m2 |
PODSUMOWANIE
| Mieszkanie | 622 984 zł brutto |
| Miejsce postojowe | 14 000 zł brutto |
| Najniższa cena z ostatnich 30 dni CENA CAŁKOWITA | 636 984 zł brutto 636 984 zł brutto |
Budynek B2 – II piętro
Na II piętrze znajdują się dwa przestronne mieszkania z trzema pokojami –
doskonałe dla rodzin i osób szukających wygodnego układu pomieszczeń.

Ii PIĘTRO
72,44 m2
ZESTAWIENIE POMIESZCZEŃ
| komunikacja | 5,94m2 |
| pomieszczenie gospodarcze | 1,73m2 |
| gardedroba | 1,28m2 |
| pokój dzienny z aneksem kuchennym | 35,24m2 |
| łazienka | 6,09m2 |
| pokój | 12,06m2 |
| pokój | 10,10m2 |
PODSUMOWANIE
| Mieszkanie | 622 984 zł brutto |
| Miejsce postojowe | 14 000 zł brutto |
| Najniższa cena z ostatnich 30 dni CENA CAŁKOWITA | 636 984 zł brutto 636 984 zł brutto |
Ii PIĘTRO
72,44 m2
ZESTAWIENIE POMIESZCZEŃ
| komunikacja | 5,94m2 |
| pomieszczenie gospodarcze | 1,73m2 |
| gardedroba | 1,28m2 |
| pokój dzienny z aneksem kuchennym | 35,24m2 |
| łazienka | 6,09m2 |
| pokój | 12,06m2 |
| pokój | 10,10m2 |
PODSUMOWANIE
| Mieszkanie | 622 984 zł brutto |
| Miejsce postojowe | 14 000 zł brutto |
| Najniższa cena z ostatnich 30 dni CENA CAŁKOWITA | 636 984 zł brutto 636 984 zł brutto |
